HXF4帶呼出接管阻火呼吸閥產品概述
HXF4帶呼出接管阻火呼吸閥是將傳統的呼吸閥與儲罐阻火器合二為一,并在呼出口配置了所需的接管,且將阻火芯改置于呼吸閥吸入口處,用于阻止火源進入閥內。其是利用閥盤的重量來控制油罐的呼氣正壓和吸氣負壓;當罐內氣體的壓力在機械呼吸閥的控制壓力范圍之內時,呼吸閥不動作,保持油罐的密閉性;當罐內氣體空間的壓力升高,達到呼吸閥的控制正壓時,呼氣閥被頂開,氣體從罐內逸出,使罐內壓力不在繼續增高;當罐內氣體空間的壓力下降,達到呼吸閥的控制負壓時,罐外的大氣將頂開吸氣閥而進入罐內,使罐內的壓力不在繼續下降。該閥主要安裝在石油化工固定儲罐上的通氣裝置上,以防止罐內超壓或超真空使儲罐遭受損壞,并阻止外界火焰傳入。本產品適用于儲存閃點低于28℃甲類油品和閃點低于100℃的乙類油品,如汽油、苯、甲苯、煤油、輕柴油、原油、航空油、食品油等油品及性質相同的化工產品。
HXF4帶呼出接管阻火呼吸閥部件材料
序號 | 部件名稱 | 材料名稱 | ||||
1 | 閥 體 | WCB | CF8 | CF3 | CF8M | CF3M |
2 | 閥 蓋 | WCB | CF8 | CF3 | CF8M | CF3M |
3 | 閥 罩 | WCB | CF8 | CF3 | CF8M | CF3M |
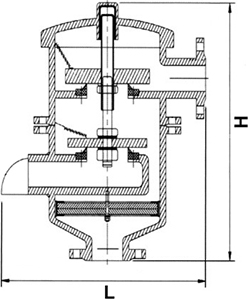
4 | 導 桿 | 304 | 304 | 304L | 316 | 316L |
5 | 閥 座 | 304 | 304 | 304L | 316 | 316L |
6 | 閥 盤 | 304 | 304 | 304L | 316 | 316L |
7 | 阻 火 層 | 304 | 304 | 304L | 316 | 316L |
8 | 密 封 件 | PTFE | PTFE | PTFE | PTFE | PTFE |
9 | 接 管 | 20# | 304 | 304L | 316 | 316L |
HXF4帶呼出接管阻火呼吸閥技術規范
呼吸閥開啟壓力等級代號 | A | B | C | D | E |
呼吸閥開啟壓力ps(Pa) | +355,-295 | +665,-295 | +980,-295 | +1375,-295 | +1765,-295 |
設計制造 | SY/T 0511.1-2010 石油儲罐附件 第1部分:呼吸閥 | ||||
法蘭標準 | JB/T 79、GB/T 9113、HG/T 20592、HG/T 20615、SH/T 3406、ASME B16.5等 | ||||
檢驗試驗 | SY/T 0511.1-2010 石油儲罐附件 第1部分:呼吸閥 | ||||
操作溫度 | -30℃ ~ 60℃ | ||||
HXF4帶呼出接管阻火呼吸閥外型尺寸
公稱壓力 PN(MPa) | 公稱通徑 DN(mm) | 尺寸(mm) | ||||||
L | H | D | D1 | D2 | C-f | n-d | ||
1.0 | 50 | 320 | 650 | 165 | 125 | 102 | 18-2 | 4-?18 |
80 | 450 | 750 | 200 | 160 | 138 | 20-2 | 8-?18 | |
100 | 450 | 950 | 220 | 180 | 158 | 20-2 | 8-?18 | |
150 | 620 | 1100 | 285 | 240 | 212 | 22-2 | 8-?22 | |
200 | 750 | 1200 | 340 | 295 | 268 | 24-2 | 8-?22 | |
250 | 850 | 1500 | 395 | 350 | 320 | 26-2 | 12-?22 | |
300 | 1100 | 1750 | 445 | 400 | 370 | 26-2 | 12-?22 | |
注:以上為HG/T 20592-2009標準PN10整體鋼制管法蘭尺寸。 | ||||||||
HXF4帶呼出接管阻火呼吸閥結構圖

如果你需訂購我廠呼吸閥產品,咨詢時煩請提供規格型號,公稱通徑、公稱壓力、閥體和內件材質、使用介質、操作溫度、通氣量、正壓(呼出壓力)、負壓(吸入壓力)、法蘭標準等,如有其他技術要求,咨詢時請詳細說明。
網站首頁